Discover Alexandria's New City Campus
Join us on the journey of our new city campus, designed to be state of the art for our departments, a hub for our community and an assest for our residents for years to come.
Innovative Design
Community Engagement
Sustainable Development
A Vision for Alexandria's Future
In 1828 Frank Spillman left 12 acres of land to be reserved for the site of the town of Alexandria. In 1834 Alexandria was incorporated as the Town of Alexandria. In 1870 the estimated population was 381 people. The City of Alexandria has grown over the years with an estimated population of 10,673 people in 2023. Alexandria built it’s first City Building in 1969 at 400 West Main St (now 8330 West Main Street, Campbell County Clerk’s Office). In 2004 they purchased the former Main Street Baptist Church building and renovated the site, moving into the building in 2006.
Not only has the city grown in size of incorporated area from 12 acres to approximately 6.93 miles, the staff size has grown as well.
Our Police Department has grown to 10 full-time patrol officers, 1 Social Worker, 2 Sergeants, 1 Lieutenant and 1 Police Chief, we also provide school resource officers to the middle school and elementary school located in the city. The Public Works has 3 full-time laborers, 1 Foreman and 1 Superintendent. Not to mention the Community Center Recreation Director and 6 part-time staff.
In 2020 the city purchased the remaining 9.94 acre site of the old Schneider Family Farm. The fields that once grew produce from tomatoes to strawberries to peaches is now providing homes to many in Alexandria.
Project Milestones
Follow the progress of our city campus project, from inception to completion, and see how each phase brings us closer to a brighter future for Alexandria.
2024
Project Inception
City council approved the purchase of 8822 Constable Drive in July 2020. In 2023 CT Consultants was hired as the architects & engineers for the porject.
On January 19, 2024 the city advertised for an RFP for Construction Manager at Risk (CMAR) and on March 21, 2024 that contract was awarded to Pepper Construction.
The first presentation to City Council and the public of what the future site could look like was given at the August 1, 2024 meeting.
Groundbreaking Ceremony
Community leaders and stakeholders gathered to celebrate the official start of construction.
Click on the picture to see the full video of the Groundbreaking Ceremony.
Guaranteed Maximum Price 1 (GMP#1)
Council voted and adopted the GMP #1 for the civil work to be done on the site at the November 21, 2024 Council Meeting.
2025
Site Work Begins
Bray Construction started clearing the site in early 2025 and continues to move dirt and bring the site to grade in order to begin construction of the building.
Guaranteed Maximum Price 2 (GMP#2)
Council voted and adopted the second GMP for the construction of the building and materials at the March 20, 2025 Council Meeting.
Design Finalization
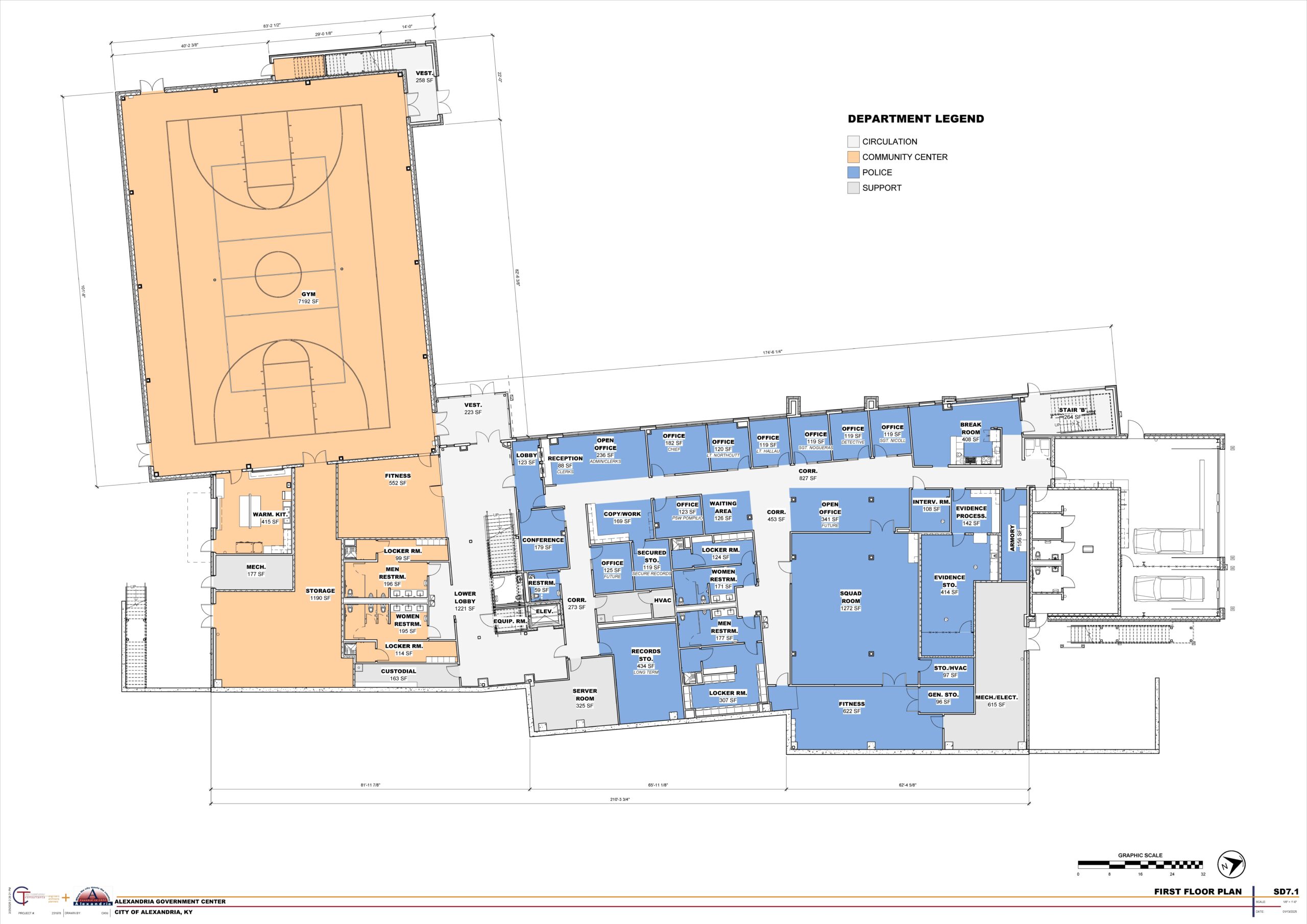
The floor plan for the Police Department, Adminstration Office, Council Chambers and Community Center can be viewed to the left. The Police Department and the Community Center Gym will be on the bottom floor. The Administration Office, Council Chamber, Community Center Offices and Walking Track are located on the top floor.
Progress
Walls are starting to go up and there are many contractors on site working outside and indoor plumbing and indoor and outdoor electrical. They are waterproofing the walls and moving on to the block for the gymnasium.
Topping out Ceremony
On October 14, 2025, City Staff along with Pepper Construction and Verdantas celebrated a milestone in the building project with the laying of the last steel beam.
Thank you to Campbell Media for capturing the moment. You can see the full video here.
A varitey of trades have been on site from electrical to plumbing to framing and everything in between. The contracators are workng hard to gett the site under roof by the end of this year.
2026
Building Completion
Estimated completion date August 2026

